Il progetto prevede l'adeguamento funzionale strutturale ed impiantistico di un edificio ospedaliero risalente agli '50, di forma planimetrica a “K”, con fabbricato longitudinale anteriore, denominato aggregato A, due ali, denominati aggregati B ed un collegamento centrale denominato corpo C.
La tipologia strutturale esistente, costituita da telai unidirezionali in c.a. possiede una estrema vulnerabilità sismica. Nello specifico, sono stati riscontrati eccessivi spostamenti nella direzione ortogonale a quella dei telai in c.a. e una inadeguata resistenza a taglio dei pilastri. La presenza inoltre di giunti tecnici inadeguati tra i corpi denuncia la presenza di potenziali fenomeni di martellamento.
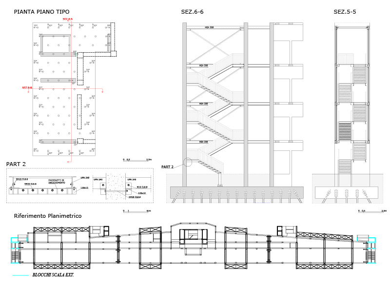
L’intervento di adeguamento prevede di mantenere lo schema strutturale esistente e di accoppiare un sistema sismoresistente parallelo, collocato per lo più all’esterno. Tale sistema è realizzato: da portali in c.a. controventati disposti trasversalmente e da blocchi scala in c.a. molto rigidi posti alle due estremità longitudinali e al centro. I corpi strutturali sono stati accoppiati dinamicamente mediante l’inserimento di connettori idraulici (OT). Localmente, per travi e pilastri in c.a. si è previsto il rinforzo a presso-flessione e taglio con CFRP.
Progetto architettonico corpo A
Ingresso corpo A
P.O. SS. Salvatore - Stato di fatto
Programma delle indagini strutturali
Confronti preliminari: inserimento di setti sismici e travi di collegamento trasversali
Progetto strutturale per l'adeguamento sismico
Accoppiamento dinamico dei corpi con connettori idraulici (OT)
Schema di rinforzo di travi e pilastri in c.a. con CFRP
Setti esterni in c.a. e schema di collegamento
Carpenteria del corpo scala ubicato all'estremità longitudinale del corpo A
Soluzione con brise soleil
Soluzione con struttura reticolare